Vivienda Las Flores

Cliente: Privado

Ubicación: Las Flores, Maldonado | Uruguay

Programa: Vivienda Unifamiliar

Estado: Finalizado

Año: 2019 / 2020

Metraje: 120m2 int / 80m2 ext

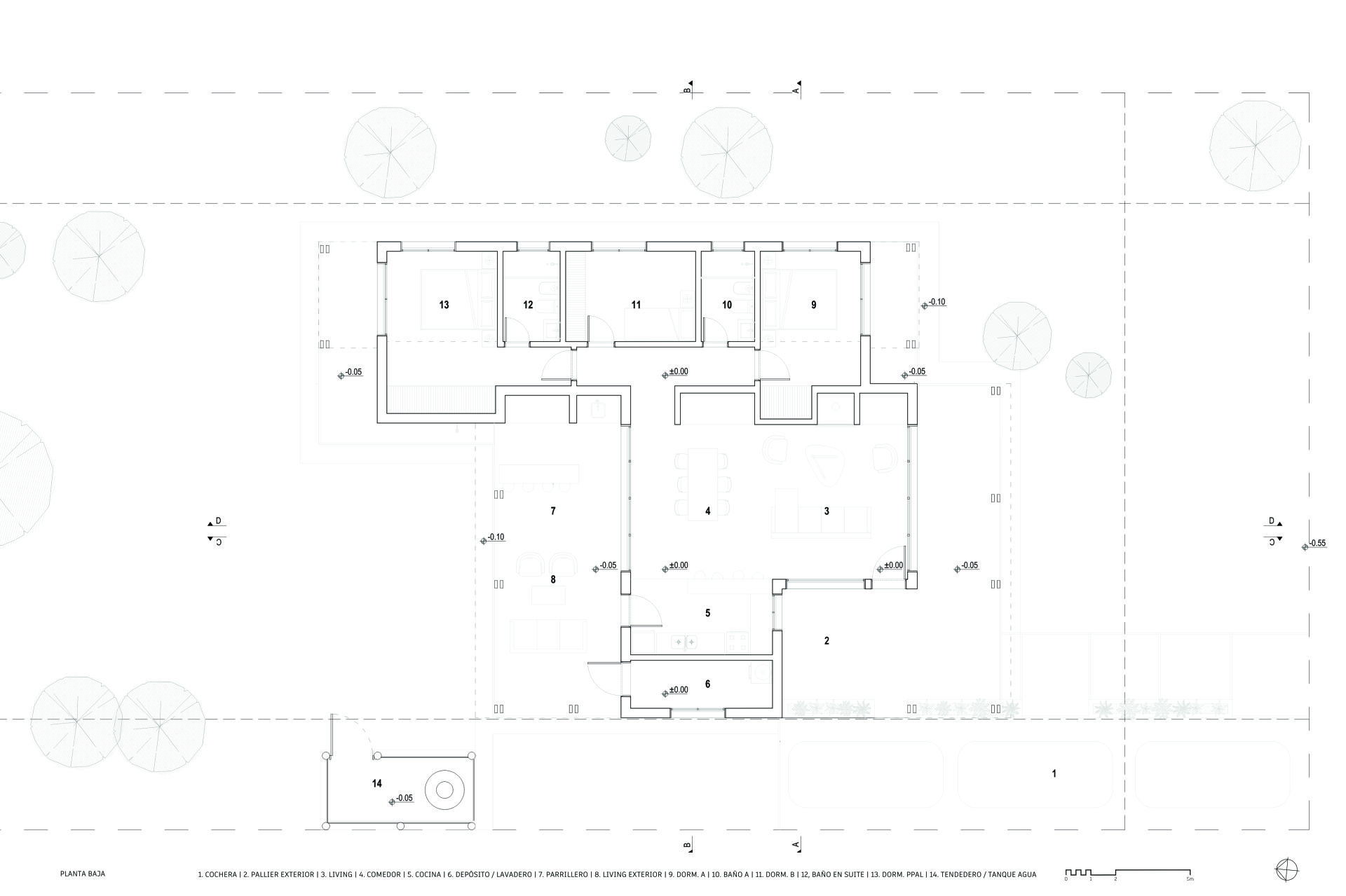
El apareamiento programático es la estrategia principal adoptada para organizar los distintos ambientes y sus interrelaciones. Depósito | Cocina como núcleo de servicio; dormitorios (tres) y baños (dos) intercalados, conforman una secuencia diaria autónoma y liberan el centro de la vivienda, donde se organiza el Living | Comedor.

Los dormitorios se expanden con sus terrazas hacia el verde del campo o hacia el azul del Río de la Plata. La cubierta del living/comedor se prolonga de la misma manera. Hacia el fondo la cubierta acobija al parrillero y hacia el frente conforma un porche de bienvenida.

Tres grandes superficies inclinadas conforman la cubierta. La más baja alberga la cocina y depósito, la intermedia dormitorios y baños y la de mayor altura el Living / Comedor. Un cuarto elemento se hace presente al incorporar parrillero, estufa, componentes de guardado (biblioteca, armario, etc); todo queda conformado en una faja transversal, que, sin generar un corte en la composición espacial, cumple la función de servir a los espacios contiguos.

Ladrillo visto, ladrillo bolseado, madera y aluminio son los materiales utilizados para alcanzar una imagen sobria y texturada, fina pero con presencia.