Vivienda Carmel
Cliente: Privado
Ubicación: Carmel, Canelones | Uruguay
Programa: Vivienda Unifamiliar
Estado: Proyecto
Año: 2020
Metraje: 365m2 int / 235m2 ext
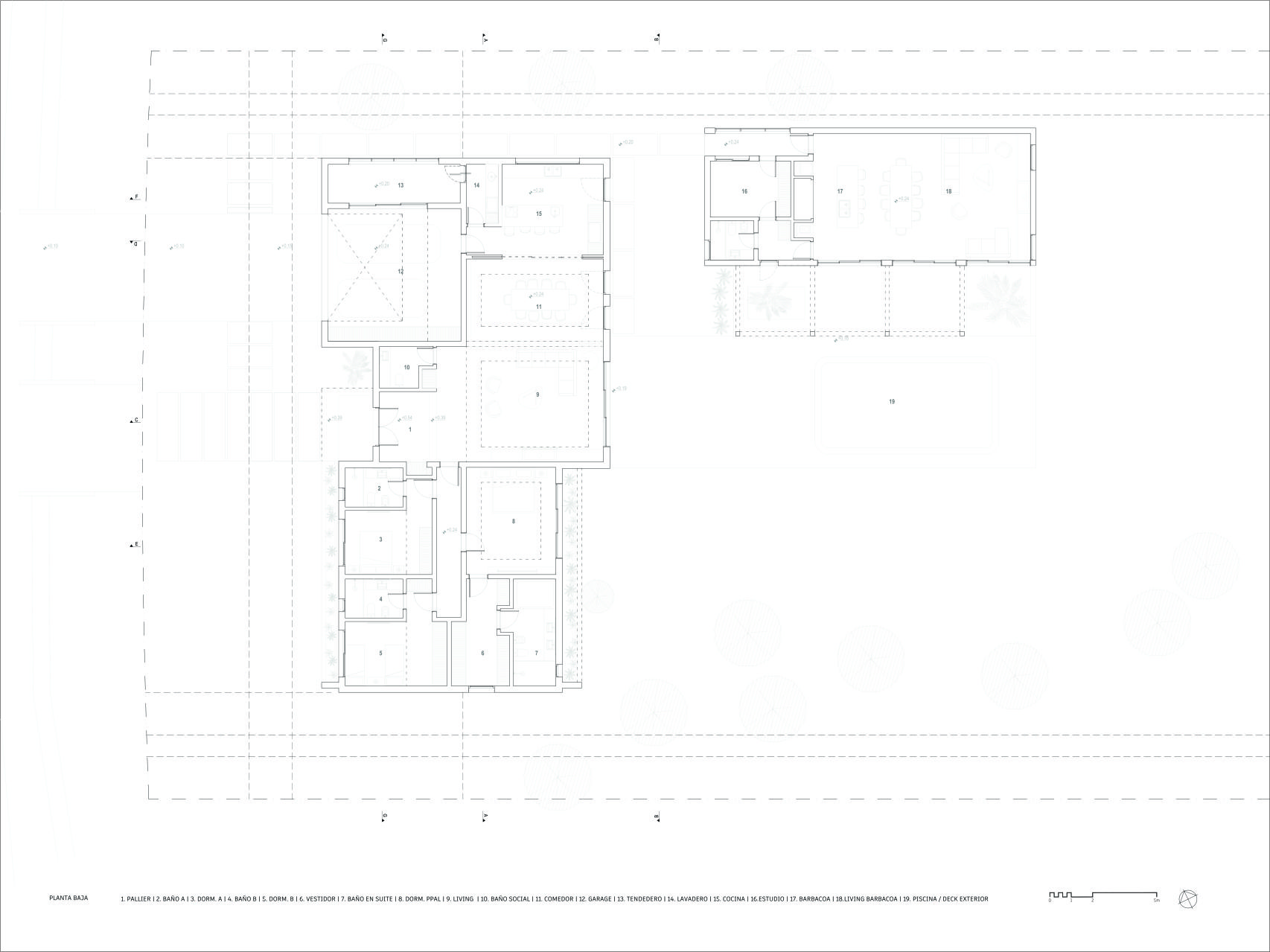
Proyecto de reforma de la totalidad de la vivienda, en la cual; dos dormitorios (uno de los mismos con vestidor), baño completo y baño social, living, cocina/comedor, garage y barbacoa (51m2, incluye baño, deposito y lavadero / tendedero), conforman la planta baja, que se adapta a los cimientos existente impuestos por la construcción original. Se deja de lado un diseño complejo, impráctico y rígido, para simplificar la volumetría global, unificar alturas y criterios generales. Espacios abiertos intermedios, de aproximación a la vivienda y asociados al programa/actividad interior, provocan una interfaz controlada y en sintonía con las exigencias del cliente. El proyecto se completa con la planta alta, donde se ubica el dormitorio principal, con su respectivo vestidor y baño en suite y el estudio particular independiente.














