LLUPES

Cliente: Privado

Ubicación: Belvedere, Montevideo | Uruguay

Programa: Vivienda de interés social

Estado: Proyecto

Año: 2020

Metraje: 180m2 int / 120m2 ext

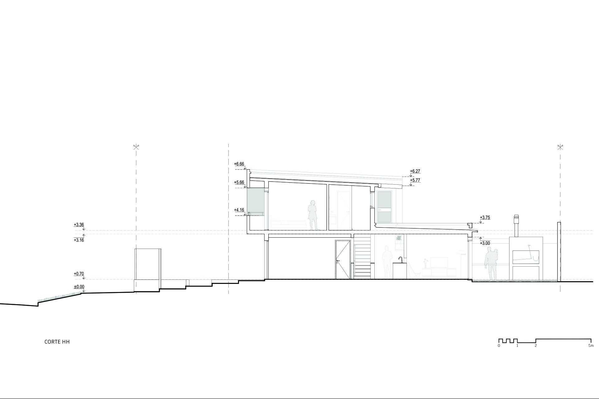
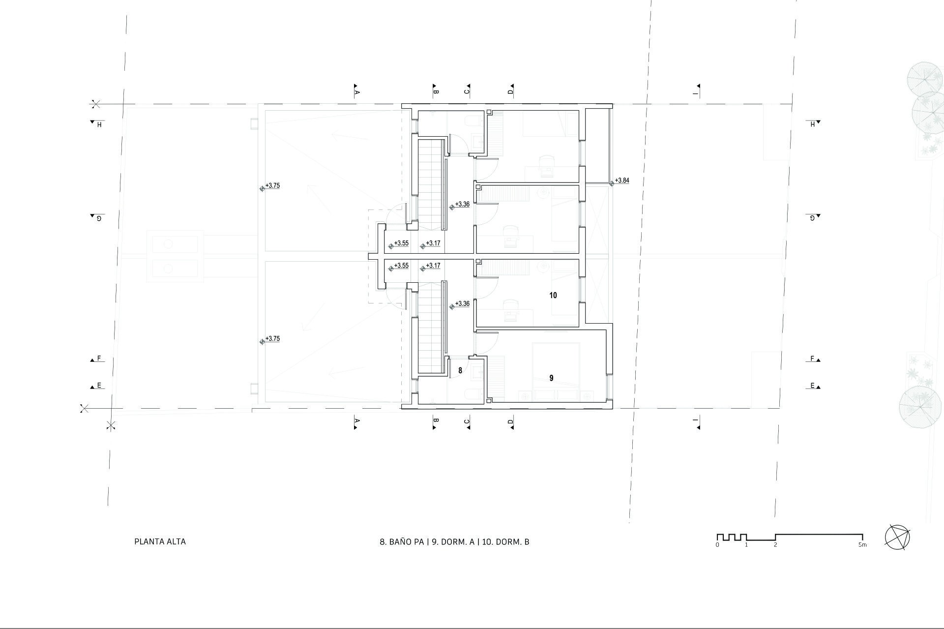
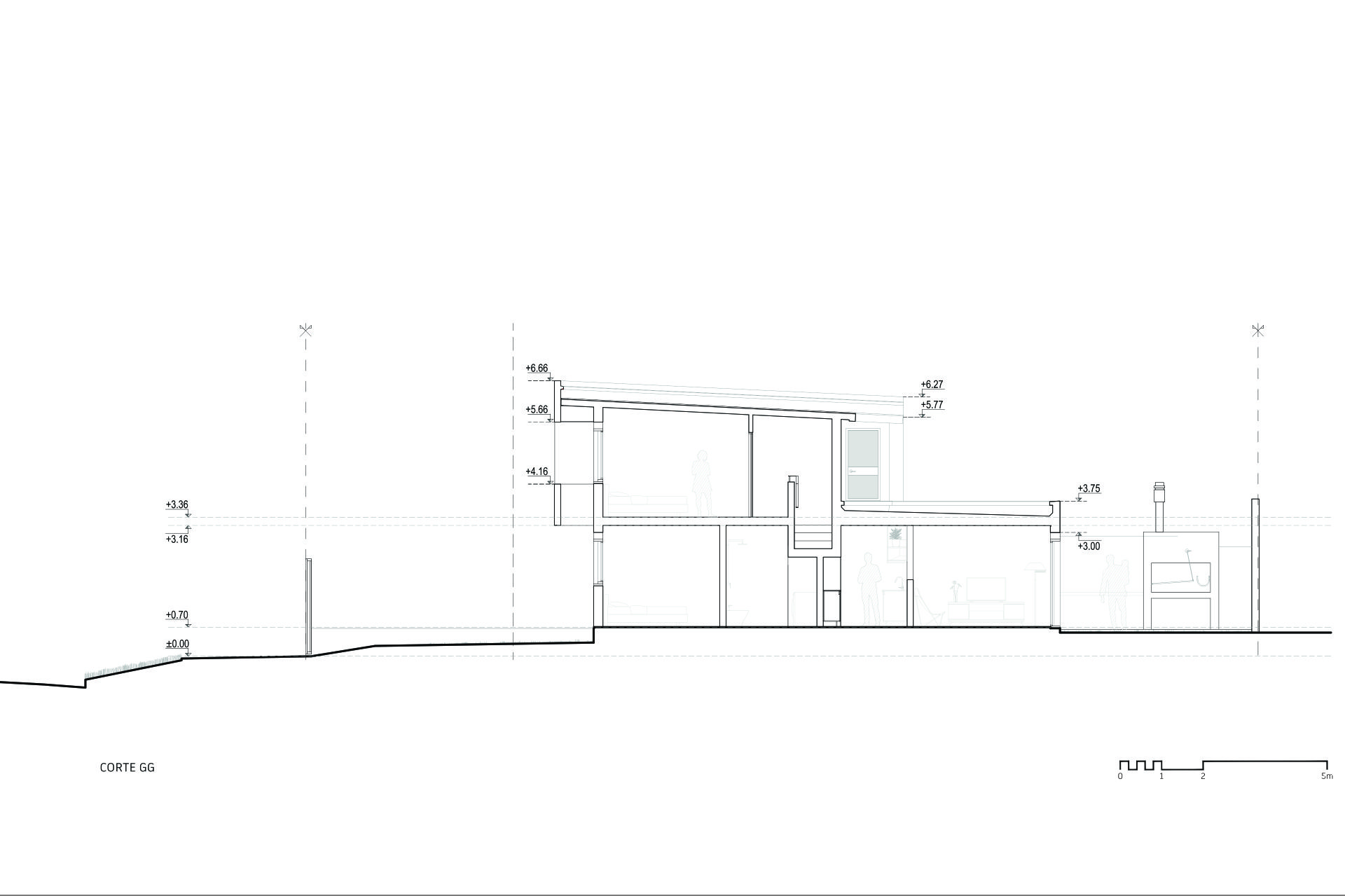
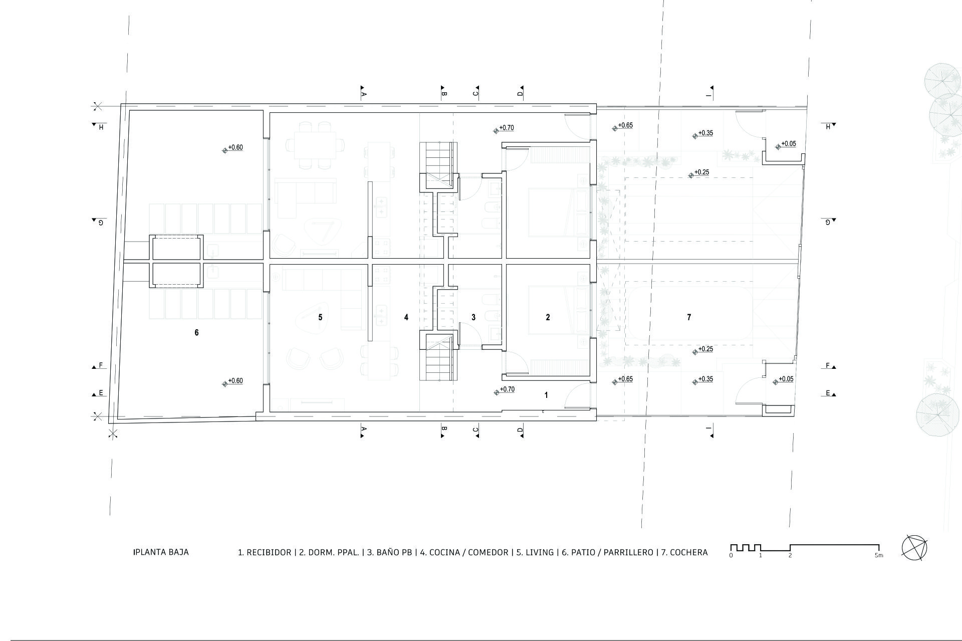
Vivienda de Interés Social, que se desarrolla en dos plantas, articulando dos unidades, ambas de 3 dormitorios. En planta baja se organizan el living / comedor asociados al parrillero ubicado en el fondo del predio, cocina, baño y dormitorio principal. Hacia el frente del terreno se resuelve el acceso techado y cochera. En planta alta se disponen los dos dormitorios restantes y baño. Adelantando una posible ampliación a futuro, se realizan las previsiones necesarias para poder conformar un cuarto dormitorio en planta alta.