Casa MYA

Estado: Finalizado

Cliente: Privado

Programa: Vivienda unifamiliar

Metraje: 170m2 int / 320m2 ext

Montoya, maldonado, UY / 2022 – 2023

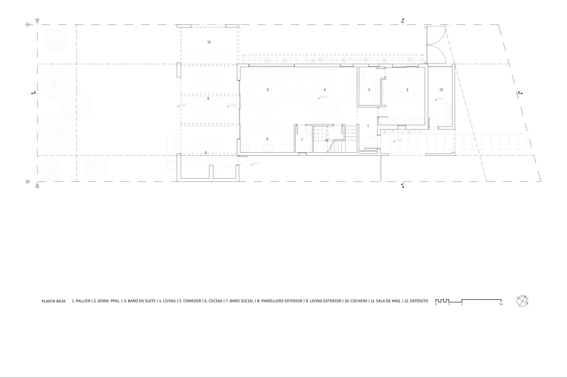
Vivienda unifamiliar de tres dormitorios que se desarrolla en planta baja y planta alta.

En planta baja el uso veraniego de la vivienda es protagonista para marcar el orden de los espacios, teniendo a disposición desde la entrada la zona de depósito (evitando así el traslado de elementos de playa por la vivienda). El dormitorio principal, en suite, se ubica en planta baja siendo accesible sin necesidad de subir escaleras.
En planta baja los espacios de mayor jerarquía son; living y cocina / comedor. Estando estos últimos dos vinculados completamente al exterior donde se ubica una zona techada con parrillero y horno de barro, a continuación de este se encuentra el patio de la vivienda.
Se disponen de manera coherente y de forma que no interfieran con las actividades de la vivienda; Sala de máquinas y lavadero, espacio de tender y servicio.

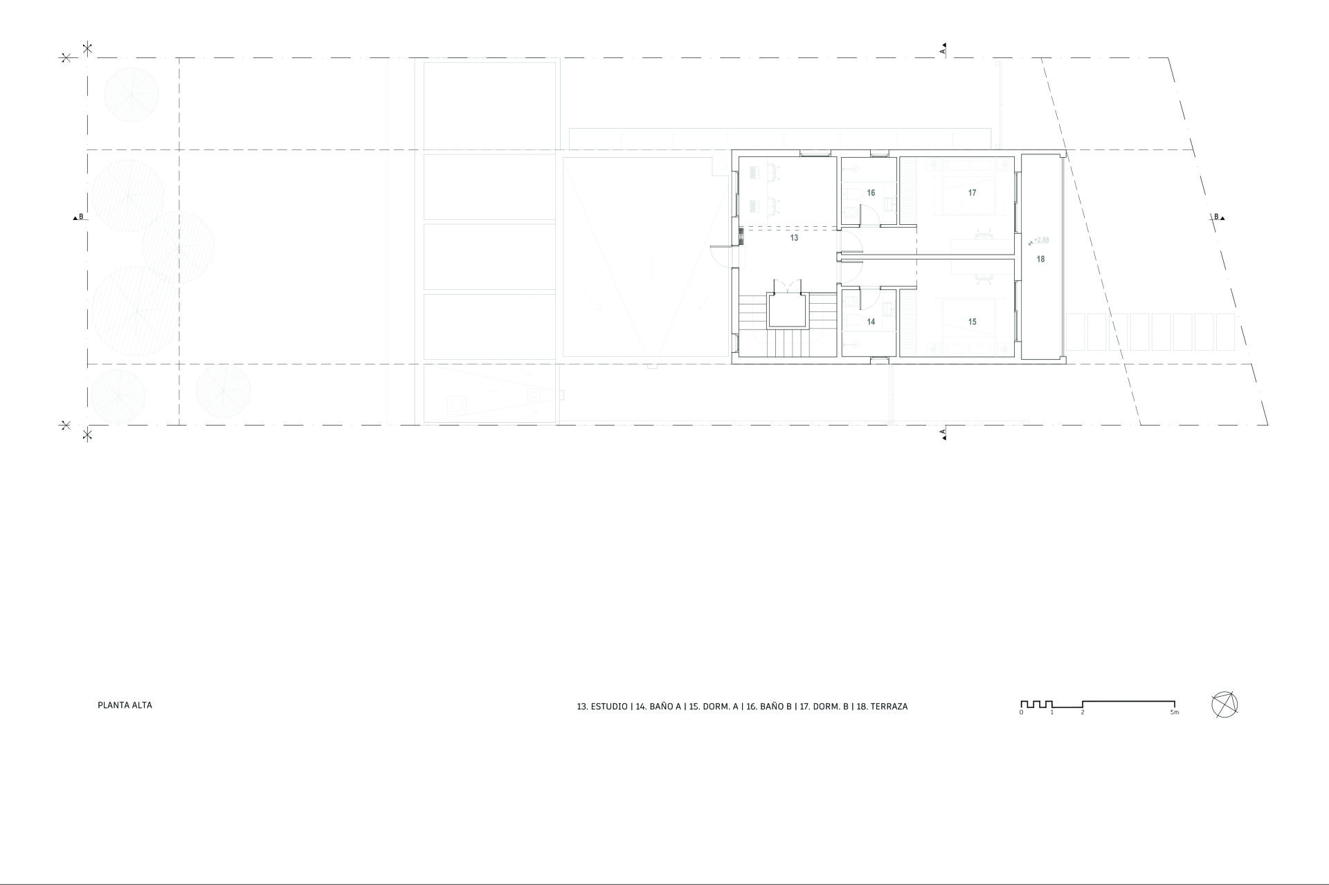
En planta alta se ubica un amplio espacio con la función de estudio y a su vez sirve de antesala a los dormitorios. Desde este espacio se puede acceder a la terraza donde se tiene vista a la playa de Montoya. Ambos dormitorios en planta alta cuentan con baño en suite, con salida a un balcón orientado al frente de la vivienda, a su vez con vistas a las playas del este.