Cafuca
Cliente: Privado
Ubicación: Montevideo | Uruguay
Programa: Vivienda Colectiva
Estado: Proyecto
Año: 2023
Metraje: 170m2 int / 72m2 ext
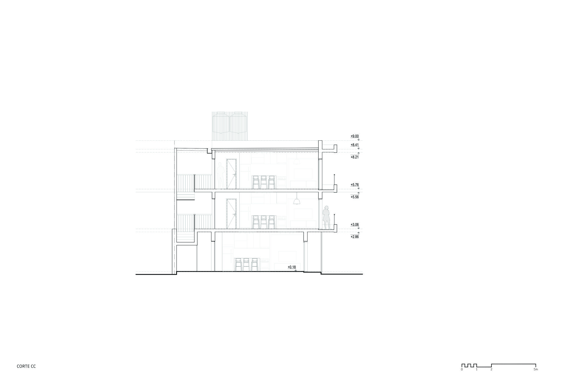
Ubicado en el barrio Parque Batlle, el anteproyecto articula cuatro unidades monoambientes y una posible quinta unidad con opción de transformación en espacio de CoWork. Apostando a usuarios jóvenes y cambiantes, las unidades se proyectan hacia el exterior a través de balcones enjardinados. Los servicios se nuclean en dos ductos verticales que desde allí abastecen a la totalidad de las unidades. El proyecto se completa con la conformación de los espacios comunes (acceso, circulación vertical y pasarelas), siempre acompañados por la presencia vegetal y materiales locales rústicos.









